本文へスキップ

三重県鈴鹿市で電気設備・計装設備の設計施工、制御盤の設計製作、パソコン修理などを行っております。

TEL. 059-386-2121

〒510-0226 三重県鈴鹿市岸岡町2877-1
サンビレッジ千代崎1−E号

事業内容製作品(電気・計装関係)

ホーム事業内容製作品(電気・計装関係)

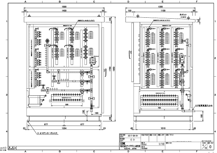
各種盤

■制御盤等の製作事例です。
ポンプ制御盤

                   Pump control panelPump control panel2




















 水質計器架台・ポンプ制御盤
         Pump control panel3Pump control panel4






















 仮設分電盤
                            Temporary distribution boardTemporary distribution board2



















 仮設分電盤
                            Instrumentation boardInstrumentation board2




























 ガス混合ユニット盤
Instrumentation boardInstrumentation board2







     



     
 計装エア制御盤






Instrumentation board2


   





会社案内  会社情報  ごあいさつ  アクセス  concept
       保証・アフターフォロー

採用情報
  |募集状況
お問い合わせお問い合わせ  お仕事依頼  協力業者募集
事業内容  |電気・計装・通信設備  制御盤・分電盤等製作  アクアリウム設備工事
       設計支援  機械(製缶・配管)  パソコン修理・販売  
       業務実績  製作品(生物モニター用水槽)  製作品(脱泡槽)
       製作品(水質計器用架台)  製作品(ルーズ短管)  
       製作品(その他製作品)  製作品(制御盤)

PC事業部ご案内 |ご利用規約  お買いものガイド  無料診断フォーム  
          修理のお申込み  お問い合わせ  特定商取引に基づく表記
弊社からのご紹介 |LAN構築例  サーバー構築例
インフォメーション出張サービス・料金  過去の修理実績  主な取扱いメーカー
ご依頼方法    |持ち込みサービス  出張サービスガイド  宅配サービスガイド
お見積り依頼   |パソコン等お見積依頼  工事お見積り依頼
PCサービス概要 |修理サービス他  保守メンテナンスサービス
          産業用パソコン修理  LAN・サーバーシステム工事
          産業・工業用パソコンメンテナンス
          パソコン機能増強・性能強化サービス
          中小企業様個人事業主様向けパソコンサポートサービス
過去の修理事例  |業務・産業用パソコン修理関連  産業用液晶モニタ修理関連  
          産業・工業用電子機器修理関連  データ復旧関連
パソコン関連販売 |IDK-PC SHOP  ご注文販売    
関係先リンク   |鞄本HP  日本ヒューレットパッカ−ド  DELL

バナースペース

株式会社アイデザイン研究所

〒510-0226
三重県鈴鹿市岸岡町2877-1 
サンビレッジ千代崎1−E号

TEL 059-386-2121
FAX 059-367-7171
E-mail:idesign-k@angel.ocn.ne.jp